各位师生:
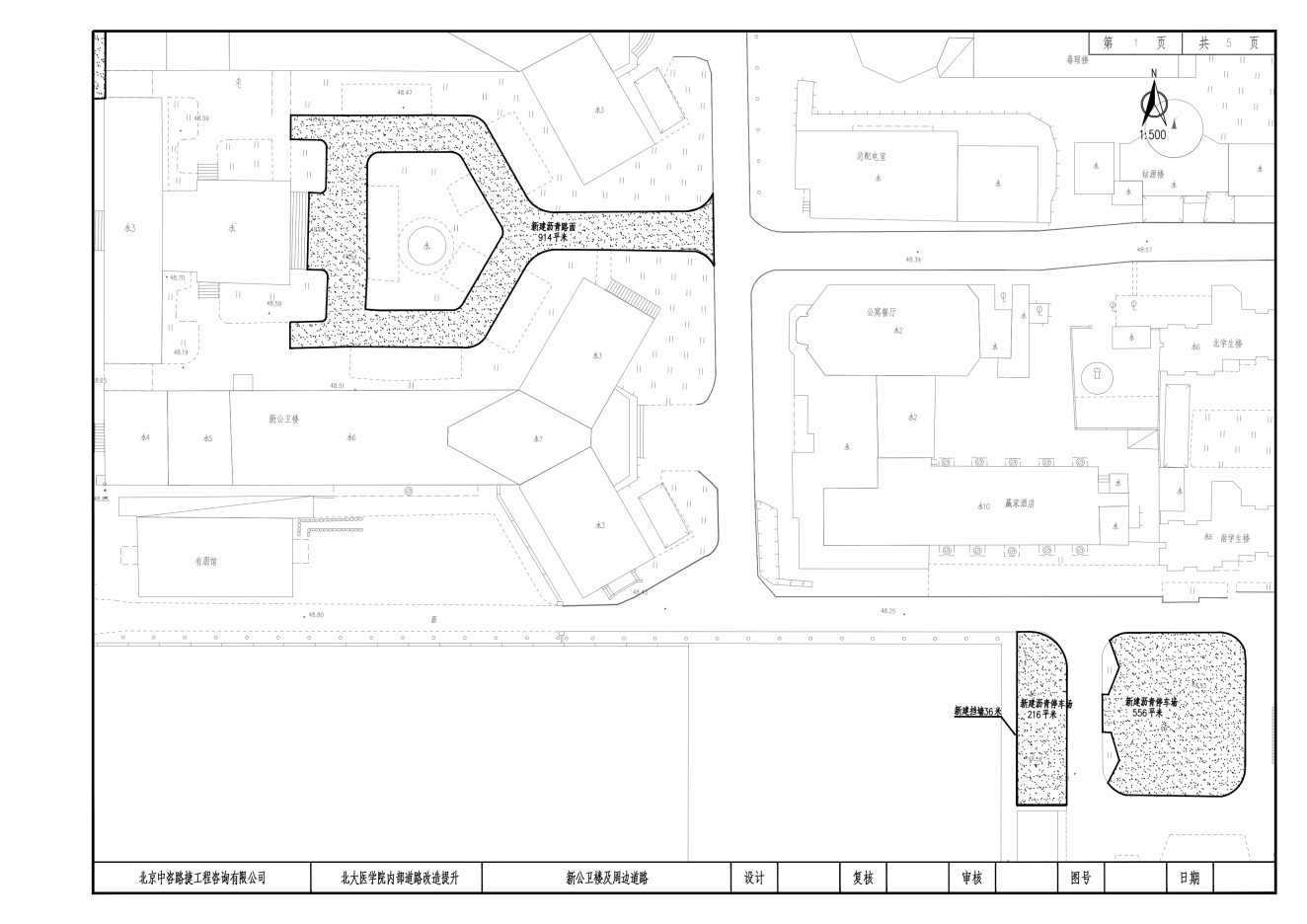
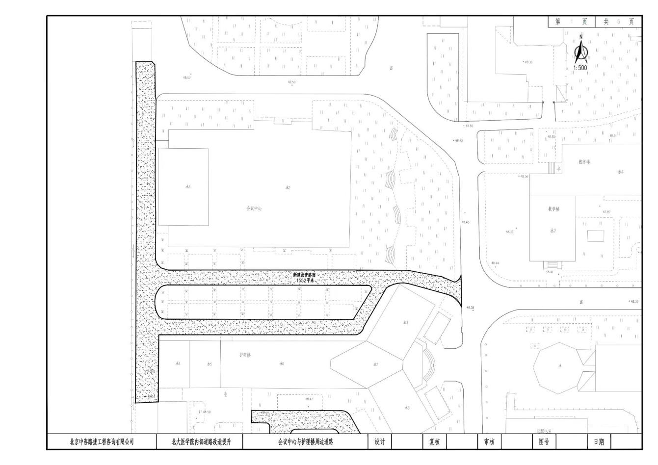
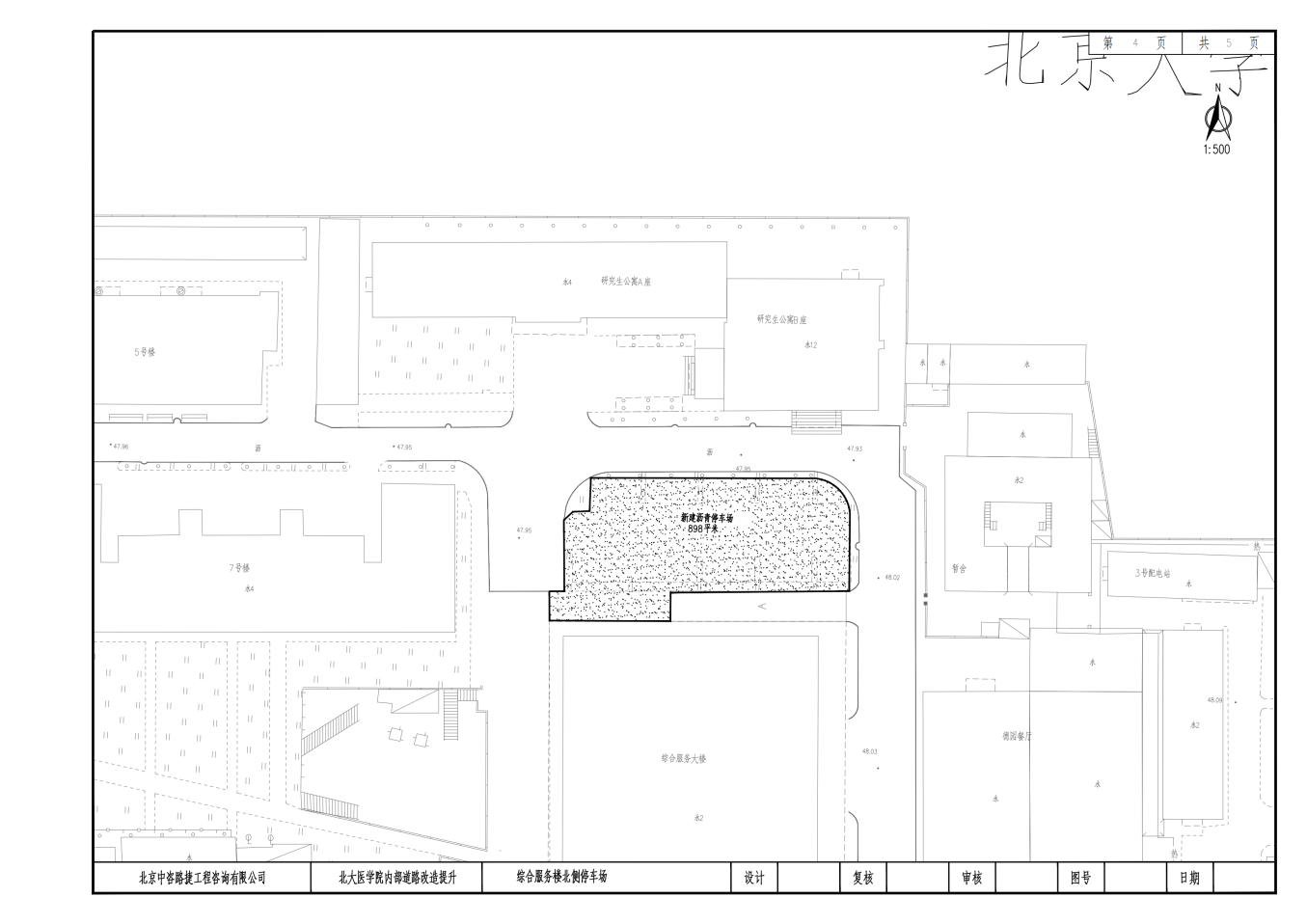
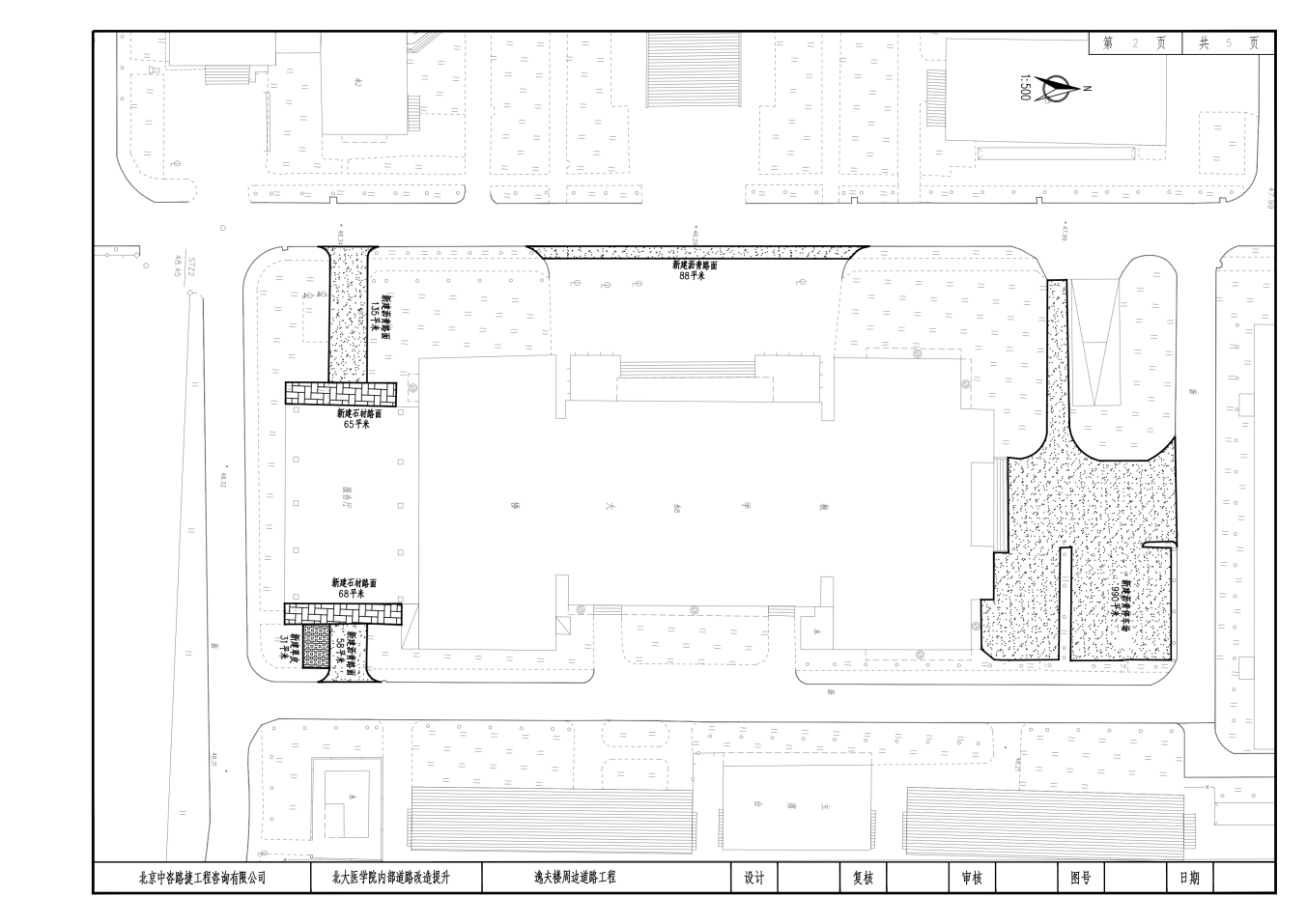
暑期总务处启动医学部校内道路改造项目,施工时间定为8月2日至8月20日的每日08:30--22:00。届时需占用校内部分停车场和停车场道路,施工期间不可停车,具体占用点位如下:
新卫生楼与护理楼间停车场道路(树华楼前)、会议中心与护理楼间停车场道路、车队西侧停车场、跃进厅北侧停车场、逸夫楼北侧停车场和南侧停车场出入口道路、逸夫楼西侧部分路面,具体范围详见附件图示。
我处将在施工区域外围搭建围挡,请各位师生给予理解与支持!
特此通知!
施工单位联系人:高工 电话:13844551712
校方联系人: 刘老师 电话:13522126330
附件:医学部校内道路改造施工临时占用道路和停车场点位图
米兰电竞,畅游电竞世界,乐享每一刻总务处
2025年8月2日
医学部校内道路改造施工临时占用道路和停车场点位图



